来源:数据知识 发布时间:2025-09-03 14:46:07 浏览次数:0
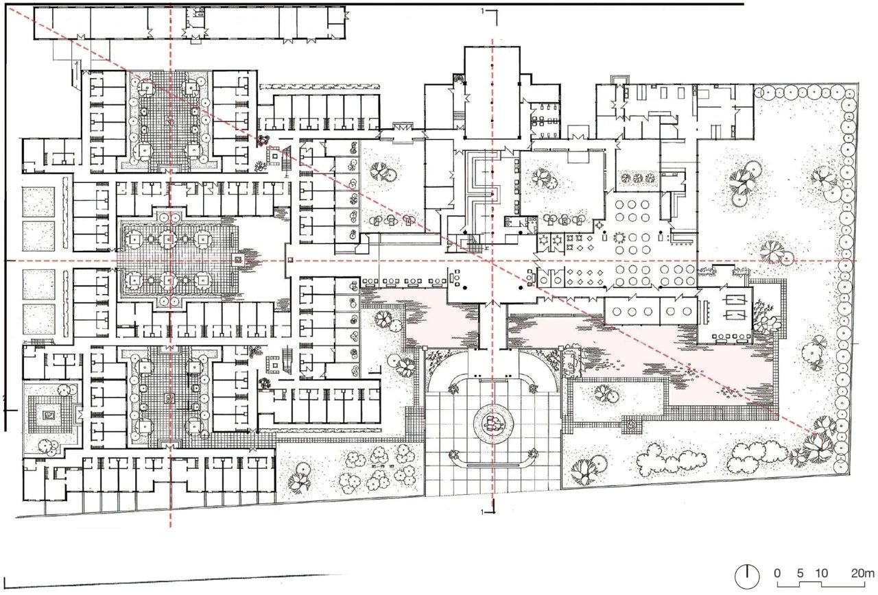
阙里宾舍的用地策略清晰明了,在一个长方形的场地上,居中划分为大致相同的两半,西边一半是客房区,东边一半是公共区,包括大堂,餐饮和商店等服务用房;在东边一半,又分成两部分,大堂靠近西侧客房,餐饮在用地最东侧。整个建筑化整为零,采用庭院式布局,围合出六个较大的四合院及若干小庭院。建筑主体两层高,墙面是白色涂料和灰砖搭配。客房区采用灰瓦悬山坡屋顶,局部采用卷棚屋顶;公共空间以悬山屋顶为主,局部采用攒尖屋顶;入口大堂采用了重檐十字歇山顶。不与一墙之隔的孔庙竞争,没有使用琉璃瓦,也没有使用油漆彩画,整体色调以灰色为主,屋顶形式和颜色与孔府协调一致,甘当配角,很好地融入了环境,维持了原有的城市风貌。
戴念慈虽然采用了传统建筑的形式,但却并没有死守传统建筑的平面布局方式,而是根据现代的功能,在平面布局上呈对称分布,但在楼梯中部节点处又以风车平面进行处理;在空间上既有中式的室外庭院空间,又具备现代酒店建筑中的大中庭空间。阙里宾舍的设计在形式上采用了中式传统的屋顶,但结合了混凝土、玻璃等现代建筑材料。这一思路,简单来说就是在内部体现结构真实性,在外部塑造贴近传统建筑的外观。客房部分难度不大,最能体现戴念慈设计功力的是入口大堂的重檐十字歇山顶,结构采用了现浇混凝土伞形扭壳,创造了优美的室内空间。因此,综合来看,1980年代的阙里宾舍的确是融汇了中西,为现代建筑与中国传统结合提供极具价值的探索。








