来源:数据知识 发布时间:2025-09-03 16:13:12 浏览次数:0
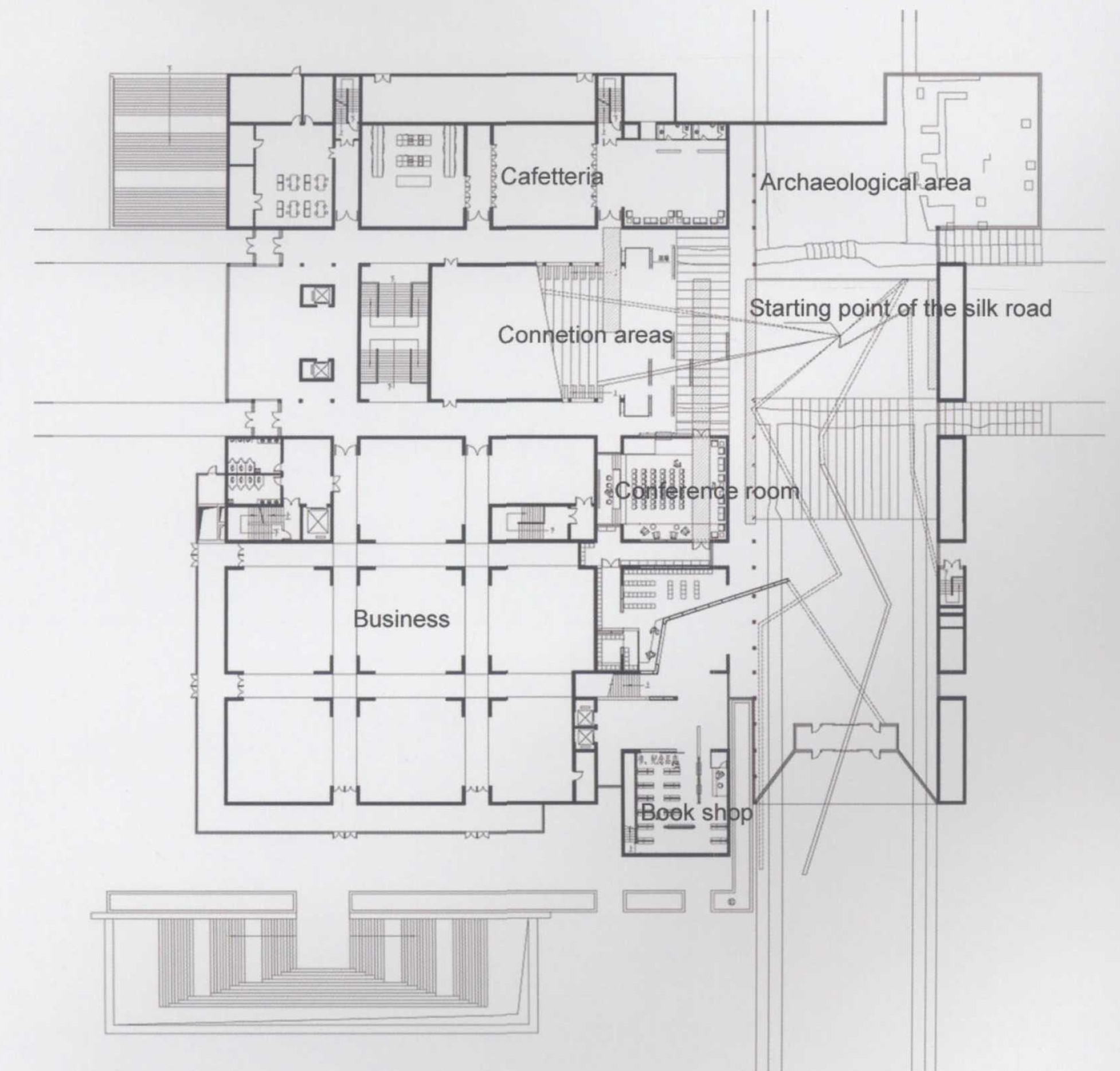
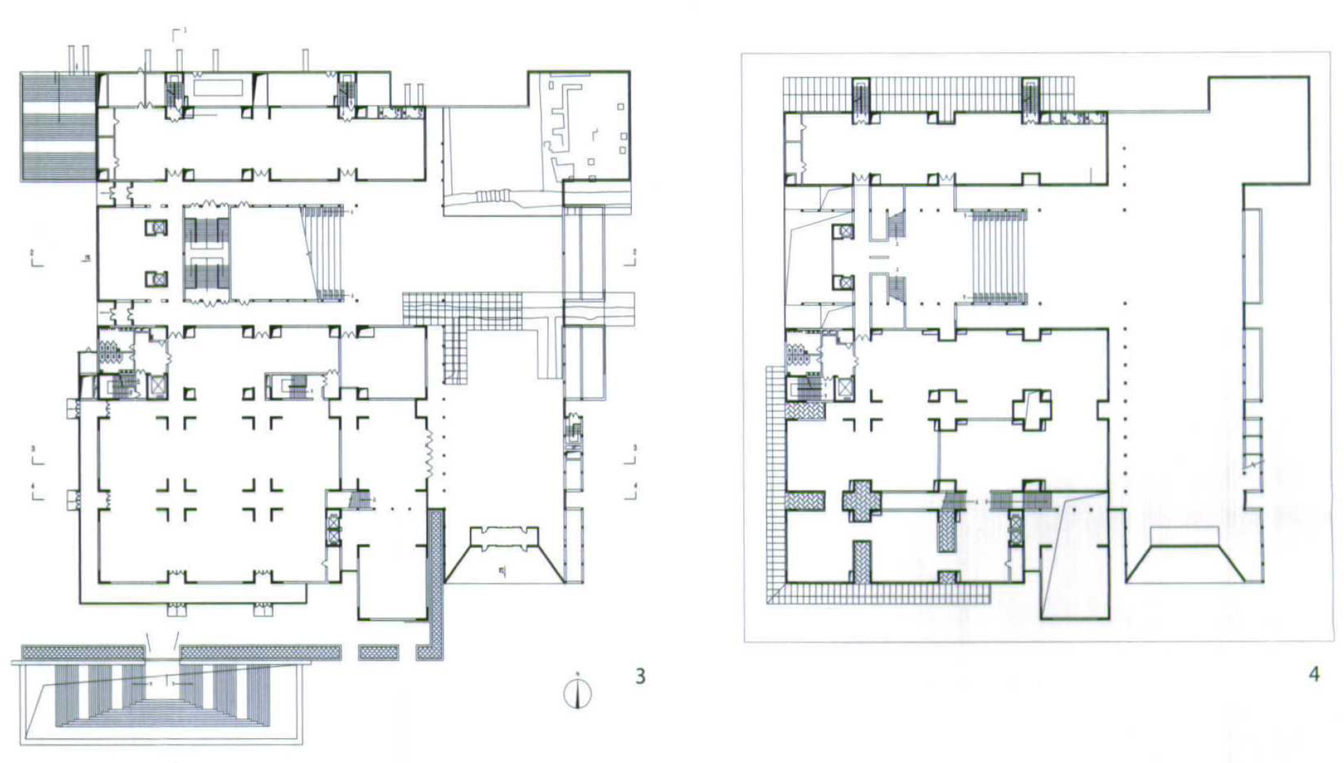
西市博物馆是国内首座由民间资本投资建设的遗址类博物馆。它是唯一反映盛唐商业文化、丝路文化和西市历史文化的主题博物馆,也是唯一在唐代长安城西市原址上再建的、原真性保存“西市遗址”的博物馆。博物馆有“十字街”、“道路车辙”“石板桥”、“房基”“水沟”等多处遗址,建筑面积3.2万平方米,展出面积8000平方米,遗址保护面积2500平方米。西市,隋称利人市,在唐皇城外的西南部,是唐长安城中重要的贸易市场,是盛唐繁华景象的见证地,也是古丝绸之路中重要的节点之一。在2006年“唐皇城复兴计划”的背景下,西安城市历史街区风貌的恢复与保护拉开了帷幕,大唐西市商业项目应运而生。
该项目中,大唐西市博物馆选择保持较好的原西市东北“十字街”遗址作为保护和展示的对象,不仅保护了遗址、遗迹,也为后人认识西市的规模与尺度提供了一个窗口和平台。参观者可通过遗址、遗物以及建筑物所营造出来的空间氛围等全方位立体地认识西市,走进历史,感受人文。建筑设计在切实保护隋唐西市道路、石桥、沟渠和建筑等遗址的基础上,通过合理布局,创造性地保护和展示了隋唐西市十字街遗址以及十字街原有道路格局、尺度、规模及氛围。
通过采用尺寸为12米x12米的展览单元,将唐长安城里坊布局、棋盘路网的特点,贯彻于博物馆空间设计的始终。同时,对建筑的体量、尺度、材料、肌理和色彩等方面进行了一系列新探索,创造出高低错落、丰富有序的空间层次和效果,立体地还原唐西市历史街道的真实尺度与空间感受。配合经过特别设计的外墙材料,从肌理、质感和气度等方面表现隋唐长安城市与建筑文化的深层结构,以及唐代西市的恢弘气势与繁华景象。
大唐西市博物馆设有基本陈列、专题展览、临时展览、特别展览等完备的陈列展览体系,集历史、艺术、民俗、藏友收藏等内容为一体,常看常新。这座造型独特、气势恢宏、环境优美、功能齐备、服务一流的新型博物馆是西安市的又一重要地标性建筑,公众喜闻乐见的文化场所,对外开放的重要窗口。项目运用新的地域建筑语言解读大唐西市的历史,衬托和展示文物与遗址环境,为人们认识和了解文物提供多种视角。











