来源:数据知识 发布时间:2025-11-05 01:13:16 浏览次数:0
合院原型

合院精读、转译与重构
关于合院的精读与研究,在于从历史档案与现存的建成物中发现其内在的抽象图式,是对当下建筑学科内核的深度反思与质疑,为未来范式重构建立一个概念性框架。

空间构成
合院原型不仅是从平面布局中提炼的“方形母题”,亦或是对中华传统文化的意向设计,而是从空间结构、序列组织、空间关系 3 个层面进行原型意义的延伸,挖掘其特性与隐藏在表层规整结构下的内在逻辑。

三种图示
受儒家、道家哲学思想影响下所追求的“人-建筑-环境”互融共生关系,从空间结构、组织秩序、虚实关系 3 个层级,可分别提炼出“九宫”宇宙图式、层级嵌套图式、“阴阳”相生图式。

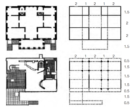
九宫型空间图示
王其亨详细论述了中国传统建筑平面构成原型及文化渊涵, 从形而上的视角分析“井” 字平面原型, 指出“井字形和九宫型图式具有空间构成上的完形性意义”。合院形式亦具有“井字形” 分形层级,随着尺度的缩放,范围与类型亦随之变化。

坦因别墅 (上)马孔坦塔别墅 (下) 平面开间比例对比
从一至九的“天地自然之数” 被称之为“九数”, 具有“九数” 与九宫图抽象特征的古代中国合院, 正是象征天下结构的具体表征。柯林·罗在比较勒·柯布西耶的斯坦因别墅 (Villa Stein) 与帕拉迪奥的马孔坦塔别墅 (Villa Malcontenta) 时,运用数理关系验证了两者之间的内在关联性。

合院形制
将“一坊两耳”、“两坊两耳”、“三坊一照壁”,以及“四合五天井”合院形制作为一个生成过程,其形式结构呈现出由从个体走向整体,从开放走向封闭,从偏向一隅走向完形匀质。

合院群体组织的等级关系
在群体组织上,合院组群受礼制思想一以贯之的影响下遵循“家国同构”的布局模式,其不仅具有纵向与横向两个维度层级渐近的等级关系,还呈现出以围合的墙体或院落为衡量的“自相似性”层级关系。

传统合院转折路径空间
在单一的合院中,庭院和建筑物通常作为一个整体而设计,按“院落”布局突出的是“墙”的边界实体和起承转合的空间序列关系。

围合空间的界面开敞变换方式
《周易》中认为一座房屋通过窗牖的开合,形成阴阳之气的流动相冲,从而产生阴阳会和之所。传统合院空间所包含的内与外、虚与实的概念亦属于对立统一的范畴,其院落与坊屋的交织关系可概括为一种阴阳相生图式。

“过白”夹景的艺术
合院中后厅屋檐下的景框设置、前厅的屋脊天际线,以及远处的山形、上方的蓝天白云,在不同的位置观赏所形成的视景在不断的变化中。笔者将之称为夹景的艺术,即运用近景之框、中景之脊,以人的视觉为中心营造前后相“夹”的过白处理手法。“过白夹景”的营建依据人的行为路径、观景方式巧妙地处理了人、单体、合院组群与自然环境、营造技术与视觉艺术之间的关系。

地域性合院特征对比
合院民居在自然环境与社会文化影响下形成了一套成熟完备的建构体系,具有空间自身组织逻辑的合院属性和以宗族或家庭血缘为架构关系的家宅属性,隐含着不同的地域文化逻辑,成为当代合院重构创作的出发点。

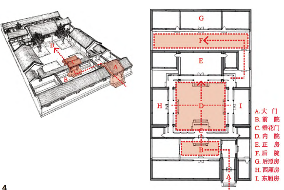
王大闳 / 虹庐(左:总平面;中:“九宫”图式分析;右:餐厅与月洞门)
在中国传统合院的九宫格布局中,通常院落居于正中,是一种“虚”空间。而王大闳设计的虹庐别墅则将其置换为餐厅,是一个具有功能性的“实”空间,挪用了九宫格概念,却又赋予新的诠释。从隐喻的角度,同样是汇集的功能,餐桌的设置使人在四周移动,仿佛回到中国合院院廊的空间经验。虹庐的平面有严谨的九宫格逻辑,左上角变为小庭园,其空间界面的处理则通过月洞窗、月洞门、门洞,将中国庭园概念幻化在现代住宅空间里。

华黎 / 四分院(左:体量模型;中:院落实景;右:共享中庭)
华黎设计的四分院保持了合院的中心与类方形的平面布局,但内部的空间秩序并非根据传统家庭伦理关系来组织,传统家庭式多代同堂的居住模式随着现代社会家庭关系的改变而解体。由“合”到“分”的变化是从原型概念中演绎出来的一种基于现代生活模式的空间组织结构的转译尝试。

崔愷西山艺术工坊
有别于对合院空间秩序的重组,“分形加密”是将合院一个大的整体划分为更小的“空间单元群”,将院落变成互动交流的共享空间,使其通过“宅园合一”的精神性营造与“公共单元”的模式适应当代社会结构。跳出建筑单体的限制,将目光导向规模更为庞大的群体组织,在相似规则的控制下,将空间变化和个性表达集中于围合的内部以及实体空间与虚体空间的搭配组合,例如崔愷的西山艺术工坊。外部具有相似的特征则使得从城市角度理解更为和谐,这种“讷于外而敏于内”的建筑特性与东方含蓄内敛的精神追求形成一种奇妙地呼应。

江苏软件园六号地块方案中合院原型提取与再组合分析
“分形加密”不仅是传统合院所体现出的建筑特性,更是一种被普遍接受且认可的设计策略。在中国新建建筑需求巨大,各种工业园区和办公集群如雨后春笋纷纷涌现的历史背景下,大舍建筑事务所设计完成的江苏软件园六号地块便是运用这一思维进行组团设计的优秀案例。面对城市近郊毫无特色且空旷荒芜的外部环境,建筑师首先确定内向合院作为集群设计的基本规则,一层满铺,于适宜处挖空作为庭院,拔高部分建筑体量,使之成为像传统合院中主屋厢房一般的建筑体量,一方面满足功能需求,另一方面则将拔高体量和几处庭院作为各个合院区分个性的构成要素,以此实现在相同组织逻辑下突显单体间个性。

十院书屋方案中原型提取与要素组合的平面生成逻辑
致正建筑事务所则采取了更为灵活的单体设计策略。设计师将墙与建筑体量脱离,形成类似于皖南民居的空间效果,变异网格控制组群院落的连缀秩序,相较大舍的设计,各合院之间紧密相连,宛如老城一般的构成格局。在相同控制之下,各院落内部表现出极大的差异性,建筑体量成“回”形,或“L”形,不一而足。

淼庐
李晓东在淼庐设计过程中既吸纳了古代合院的营建观,又运用了现代建筑设计方法。场地选址遵循“负阴抱阳,背山面水”的原则,巧妙地将建筑与山水环境相呼应,建筑背靠玉龙雪山,面向自然湖泊。设计构思中,运用了穿插的水体与路径迂回的方式呈现出古代“相地”与“藏风纳气”的堪舆观念。

冯大中艺术中心平面
陶磊在辽宁本溪设计的冯大中艺术中心, 是关于传统合院解构与重组的另一种策略。 该建筑坐落在院墙中心位置, 功能为艺术家家宅、 工作室与展览空间, 被称之为“凹舍”, 意为内凹的方形“砖盒子”,亦是潜意识地对古代合院的另外一种解读。