来源:数据知识 发布时间:2025-11-25 15:13:56 浏览次数:0
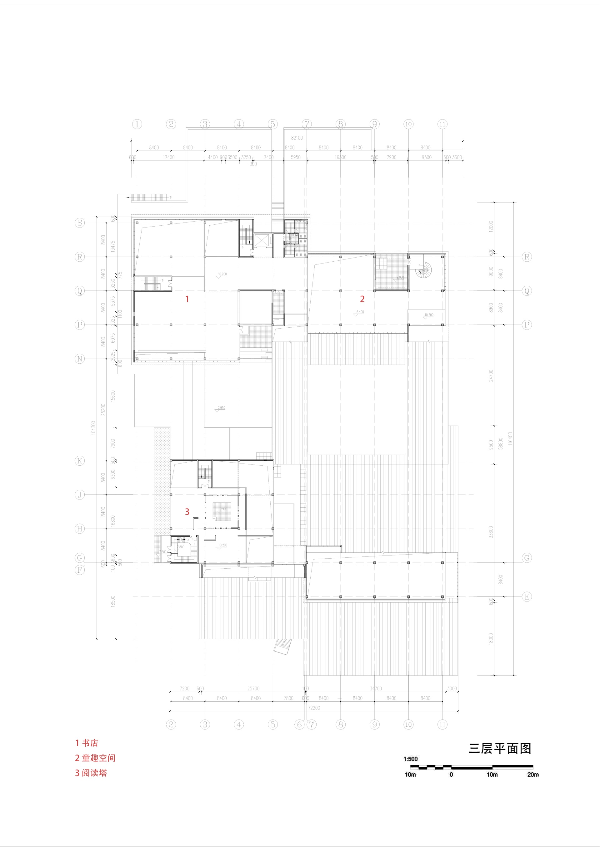
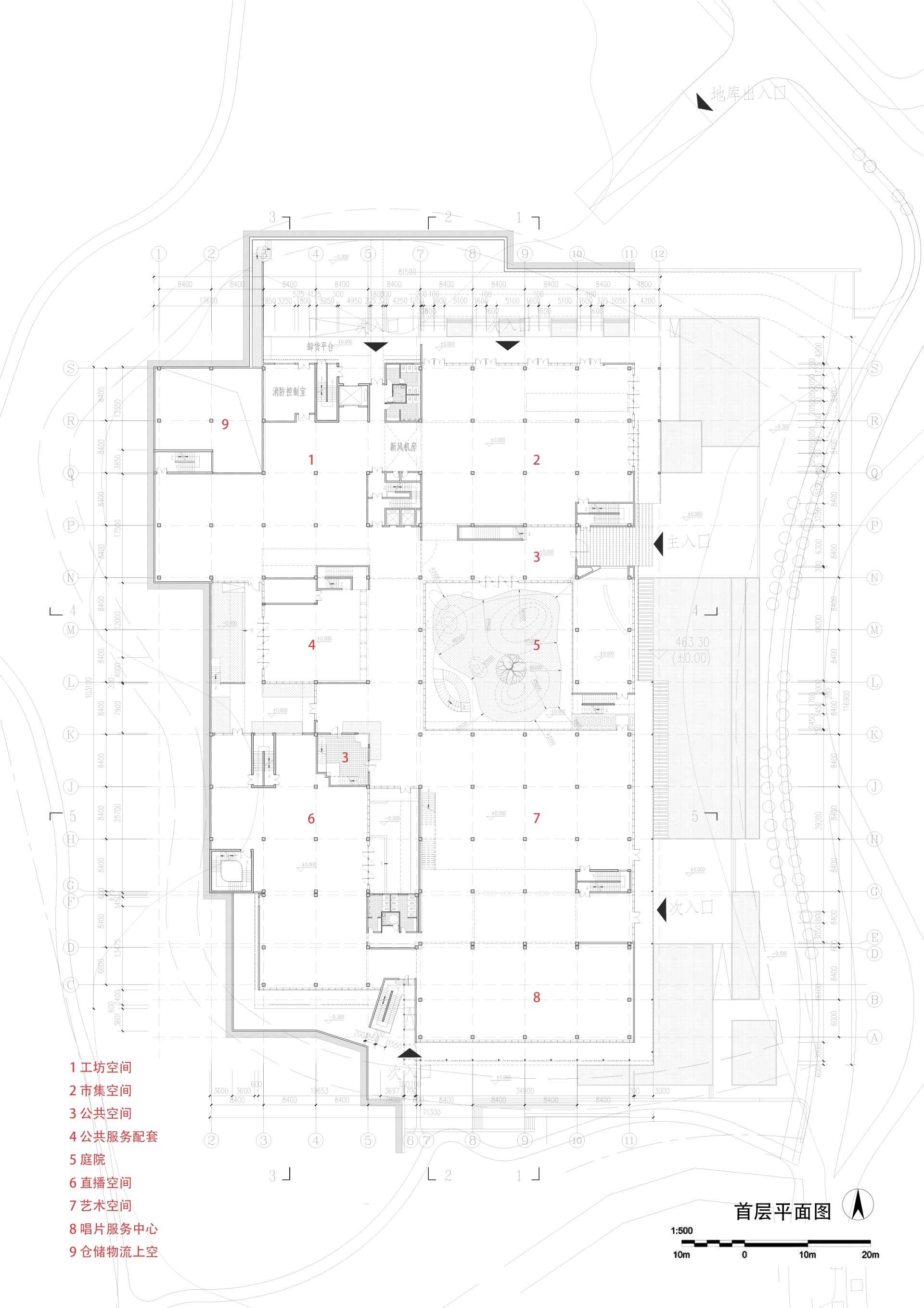
乐之庭
凯州新城建筑集群设计 14 号地块
项目名称:乐之庭
设计者:孔宇航,辛善超,胡一可,刘健琨,吴蔚桐,师晓龙,李政,周歆悦,张师师,兰迪,唐泽羚,姜寒,陈慧雯
设计类别:文化商业类
项目地点:四川省德阳市凯州新城兴隆镇翠竹村 11 社
场地面积:11974.21m2
总建筑面积:18869.78m2
设计时间:2021.11-2022.4
以“山谷中的文化客厅”为设计理念,聚焦于建筑与环境之间、传统与当代之间、空间与空间之间的联系,对三种关系的思索与追问贯穿该项目的设计过程。











